Filtrer
Chercher sur la carte

Terrains à vendre en France

180 annonces de vente de Terrains en France

890 000 € 4 640 m²
Terrain à vendre – Lamanon (13113)Surface : 4 640 m² – Zone UE – Excellente visibilité en bord de routeÀ vendre, terrain de 4 640 m² idéalement situé sur la commune de Lamanon, bénéficiant d'une forte visibilité en bordure de route et d'un accès immédiat à l'autoroute A7. Ce foncier, cadastré parcelle C 1399, se situe en zone UE du PLU, dédiée aux activités économiques.. Activités autorisées :BureauxArtisanatRestaurationLoisirsIndustriesActivités non autorisées :Exploitation agricoleCommerce de gros ou de détailCentres de congrès et d'expositionHabitationSurfaces de vente / points de venteRègles d'urbanisme principales :Emprise au sol maximale : 60 % du foncierImplantation du bâtiment : à 4 m minimum des limites séparativesHauteur maximale au faîtage : 12 mHauteur maximale de clôture : 2 mStationnement à prévoir :Industrie / Entrepôt : 3 places pour les 100 premiers m², puis 1 place / 50 m²Bureaux : 1 place / 20 m²Restaurant : 1 place / 10 m²Les + du site :Excellente visibilité en bordure de routeProximité immédiate de l'autoroute A7Environnement professionnel de qualitéBelle surface exploitable (jusqu'à 60 % d'emprise au sol)Idéal pour un projet d'entreprise, de bureaux ou d'artisanat Les informations sur les risques auxquels ce bien est exposé sont disponibles sur le site Géorisques https://www.georisques.gouv.fr €
13113 Lamanon
BAUX LOCAUX
06/10/2025
Professionnel
06/10/2025
180 000 € 2 289 m²
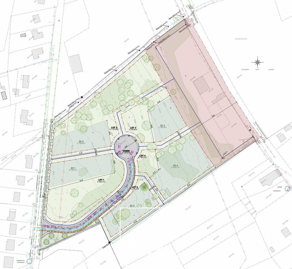
Au sein d'un nouveau parc d'activités, bénéficiant d'une très belle visibilité sur le boulevard périphérique Ouest de Caen, 5 terrains constructibles allant de 2 289 à 2 925 m², à savoir :. - Lot 2 : 2 925 m² - Lot 3 : 2 289 m² - Lot 5 : 2 725 m² - Lot 6 : 2 691 m² - Lot 7 : 2 595 m² . Possibilité de réunir plusieurs parcelles.. Emprise foncière maximale autorisée par parcelle : environ 801 à 1 023 m².. Non libre choix du constructeur.. Nous consulter pour plus d'informations et une étude de votre projet.. Les prix de vente s'entendent HT (à partir de 180 000 € pour 2 289 m²) et honoraires HT en sus à la charge de l'acquéreur : 5% HT soit 6% TTC du prix de vente HT.. Retrouvez toutes nos annonces sur notre site internet LEM CBRE. Les informations sur les risques auxquels ce bien est exposé sont disponibles sur le site Géorisques https://www.georisques.gouv.fr €
14650 Carpiquet
LEM CBRE CAEN
29/10/2025
Professionnel
29/10/2025
49 000 € 110 m²
Droit au bail pour un local tout aménagé pour une activité de pizza à emporter et livraison, situé sur l’axe principal d’un secteur très passant de l’Ouest Lyonnais. Le local est équipé d'un four à bois, d'une chambre froide et d'un grand espace de stockage. Possibilité d’aménager une salle pour consommation sur place. Un emplacement à fort potentiel avec un outil de travail opérationnel dès la reprise. Idéal pour un pizzaiolo confirmé ou un entrepreneur souhaitant se lancer. Montant estimé des dépenses annuelles d'énergie pour un usage standard : non communiqué. €
69230 Saint-Genis-Laval
IMMOPRO
06/10/2025
Professionnel
06/10/2025
1 208 130 € 10 983 m²
Nous vous proposons à la vente un terrain industriel. Situé au Sud de Montauban, à proximité du péage Sud Montauban. La parcelle développe une superficie de 10 983 m².Localisé proche du péage Sud Montauban, le terrain bénéficie d'une très bonne accessibilité.Constructions autorisées: Locaux d'activités, entrepôts, bureaux.. La surface imperméabilisée sera limitée au maximum à 85% de la surface totale de la parcelle.Toutes les parcelles ont un accès direct aux voiries du lotissement elles-mêmes connectées au réseau communal. Honoraires en sus charge acquéreur + 5% HT du prix de vente. Les informations sur les risques auxquels ce bien est exposé sont disponibles sur le site Géorisques https://www.georisques.gouv.fr €
82710 Bressols
FIKA
13/11/2025
Professionnel
13/11/2025
1 617 000 € 17 112 m²
MONTAUBAN SUD - VENTE TERRAIN DE 17112 M². A vendre proximité immédiate de la sortie de péage de Montauban Sud 17112 m² de terrain viabilisé, dans un lotissement en zone industrielle. Constructible tertiaire commerce et industrie. Le prix net vendeur HT : 1 540 000 euros. Plusieurs surfaces disponibles. D'autres annonces similaires sur notre site immobilier-entreprise-31. €
82000 Montauban
ADE IMMO PRO
19/09/2024
Professionnel
19/09/2024
80 000 € 35 m²
Local commercial situé sur le Cours Vitton Très bel emplacement sur l'une des rues les plus commercantes du 6ème arrondissement Local de 35m2, possibilité d'effectuer toutes activités sauf restauration Montant estimé des dépenses annuelles d'énergie pour un usage standard : non communiqué. €
69006 Lyon 06
IMMOPRO
29/01/2025
Professionnel
29/01/2025
560 000 € 1 600 m²
Terrain à la vente en vue de réaliser une opération de promotion immobilièrePetites villas en bande ou résidentiel horizontalPotentiel selon PLU. Emplacement privilégiéPossibilité de places de parkingProximité coeur villageA 3 min de la rocade Nord Avignon10 min de la Zone commerciale du Pontet. Idéal petit collectifPossible 10-12 logements Les informations sur les risques auxquels ce bien est exposé sont disponibles sur le site Géorisques https://www.georisques.gouv.fr €
84170 Monteux
NORMAN TAYLOR OCCITANIE
22/10/2025
Professionnel
22/10/2025
1 860 000 € 300 m²
Cette affaire génère un CA de 1.3 MEuros pour 10 services par semaine en proposant une offre de brasserie avec un ticket moyen de 25Euros environ. Le restaurant est en parfait état et bénéficie d'un équipement de qualité, entretenu régulièrement. A noter une belle veranda-terrasse de 80 places utilisable toute l'année. Cette affaire est commercialisée avec ses murs et un grand appartement est aussi inclus. Contactez Roland ROBERT chez IMMOPRO au 04.72.43.99.09 Montant estimé des dépenses annuelles d'énergie pour un usage standard : non communiqué. €
Mandat exclusif
69800 Saint-Priest
IMMOPRO
02/09/2025
Professionnel
02/09/2025
535 500 € 5 653 m²
MONTAUBAN SUD - A LA VENTE TERRAIN DE 5653 M². A vendre proximité immédiate de la sortie de péage de Montauban Sud 5653 m² de terrain viabilisé, dans un lotissement en zone industrielle. Constructible tertiaire commerce et industrie. Le prix net vendeur HT : 510 000 euros. Plusieurs surfaces disponibles. D'autres annonces similaires sur notre site immobilier-entreprise-31 €
82000 Montauban
ADE IMMO PRO
08/08/2024
Professionnel
08/08/2024
1 471 750 € 8 410 m²
Situés en bordure immédiate de la N89, sur la commune de Beychac-et-Caillau, nous proposons à la vente plusieurs parcelles de terrain à usage professionnel.. Caractéristiques de l'offre :Superficies modulables : Surface à partir 1803 m2Terrains à bâtir : libres de constructeur ou disponibles en VEFA (Vente en l'État Futur d'Achèvement)Destination possible : entrepôt, locaux d'activités, artisanat, commerce, bureaux.Accès rapide à la rocade bordelaise (A630) et aux principaux axes autoroutiers (A10, N89)Environnement mixte : activités, logistique, tertiaire légerLocalisation : Rive Droite de Bordeaux – 33750 Beychac-et-CaillauPlus d'informations et plan des lots disponibles sur : www.locoimmo.com Les informations sur les risques auxquels ce bien est exposé sont disponibles sur le site Géorisques https://www.georisques.gouv.fr €
33750 Beychac-et-Caillau
LOCO IMMO
01/07/2025
Professionnel
01/07/2025
1 500 000 € 10 000 m²
Rare sur le secteur, Immprove vous propose à la vente sur la commune du Plessis Belleville (60), à proximité immédiate (900 m) de la sortie SILLY le Long, un terrain clos de 10 000 m². €
60330 Ève
IMMPROVE PARIS
18/06/2024
Professionnel
18/06/2024
300 000 € 3 000 m²
Nous vous proposons à la vente 6 terrains constructibles au sein d'un ensemble commercial.. Les terrains propose une surface de 1000 à 3000 m². . Situé très proche d'une zone commerciale, d'une jardinerie d'une enseigne nationale, d'un lycée... Le projet comportera plusieurs locomotive de flux, une halle gourmande, une boulangerie, un restaurant évènementiel, un complexe sportif et santé.. 70 places environ accompagnent le projet pour accueillir toute la clientèle.. Conditions financières :. Prix de vente par m² : 100€/m² HT HF Les informations sur les risques auxquels ce bien est exposé sont disponibles sur le site Géorisques https://www.georisques.gouv.fr €
11400 Castelnaudary
FRANCE TRANSACTIONS PROFESSIONNELS
12/11/2025
Professionnel
12/11/2025
850 000 € 20 000 m²
Nous vous proposons à la vente un terrain industriel. Situé au Nord de la commune de Lavaur et au sein de la zone du Cauquillous, le foncier se trouve dans un environnement principalement artisanal et industriel, il est d'une superficie totale d'environ 20 000 m². . Le terrain profite d'une bonne situation grâce à son accès direct depuis la D630 ainsi que sa proximité avec l'autoroute A68. . En zone 1AUE du PLU de la commune de Lavaur, la parcelle peut accueillir des locaux d'activité, des entrepôts ainsi que des bureaux et des commerces. L'emprise au sol est de 80% et la hauteur maximum autorisée est de 15m.. Le terrain est plat et non remblayé.. Honoraires en sus charge acquéreur +5% HT du prix de vente.TF: NC. Les informations sur les risques auxquels ce bien est exposé sont disponibles sur le site Géorisques https://www.georisques.gouv.fr €
81500 Lavaur
FIKA
10/03/2025
Professionnel
10/03/2025
87 000 € 55 m²
Trés beau Local commercial, toutes activités hors alimentaire possible. Emplacement stratégique au coeur de tassin et de son horloge. Affaire coup de coeur Contact Alexandre RUIZ Immoprolyon 04.72.43.99.09 Montant estimé des dépenses annuelles d'énergie pour un usage standard : non communiqué. €
69160 Tassin-la-Demi-Lune
IMMOPRO
28/01/2025
Professionnel
28/01/2025
307 400 € 2 900 m²
MONTAUBAN SUD - VENTE TERRAIN DE 2900 M². A vendre proximité immédiate de la sortie de péage de Montauban Sud 2900 m² de terrain viabilisé, dans un lotissement en zone industrielle. Constructible tertiaire commerce et industrie. Le prix net vendeur HT : 290 000 euros. Plusieurs surfaces disponibles. D'autres annonces similaires sur notre site immobilier-entreprise-31. €
82000 Montauban
ADE IMMO PRO
08/08/2024
Professionnel
08/08/2024
1 213 000 € 6 066 m²
LES BILLAUX - PROCHE LIBOURNE. Sur un axe de grand passage bénéficiant d'une grande visibilité,. Terrain à vendre d'une superficie de 6 066 m² après cession pour réalisation d'un rond-point.. Vente libre de tout constructeur. Réalisation du rond-point : fin 2025.Terrain viabilisé : eau, tout à l'égout, Electricité tarif jaune chemin des Annereaux. Le futur PLU prévoit une emprise au sol de 60 % avec une limite de hauteur à 12 m.Activités autorisées : toutes activités HORMIS supermarchés alimentaires.Exonération totale de la part Communale sur la participation aux travaux du rond-point.. Il restera à la charge du Preneur la part Départementale dont le montant sera à préciser selon la surface bâtie.. Contactez-nous pour plus d'informations !. Les informations sur les risques auxquels ce bien est exposé sont disponibles sur le site Géorisques : www.georisques.gouv.fr Les informations sur les risques auxquels ce bien est exposé sont disponibles sur le site Géorisques https://www.georisques.gouv.fr €
33500 Les Billaux
Caze Immobilier D'entreprise
12/11/2025
Professionnel
12/11/2025
122 506 € 1 m²
A 5mn du centre ville et proche des services. Dans une zone d'activité artisanale et services aux entreprises, à vendre parcelle de 1 823m². Raccordement à la fibre possible. 122 506 € FAI. Les informations sur les risques auxquels ce bien est exposé sont disponibles sur le site www.georisques.gouv.fr. €
85400 Chasnais
A2C
14/05/2024
Professionnel
14/05/2024
90 000 € 350 m²
Vente d'un droit au bail sous forme de plateau. La superficie est d'environ 300m2. Le bien est aux normes pour acceuillir jusqu'à 500 personnes. Le linéaire du bar de 10m est parfaitement équipé. La structure permet un stationnement facile. On trouve une scène pour les concert, une terrasse de 300m2 et une cuisisne attenante. Ce bien est en vente dans votre agence Immopro Lyon. 0472439909. Montant estimé des dépenses annuelles d'énergie pour un usage standard : non communiqué. €
69001 Lyon 01
IMMOPRO
25/09/2024
Professionnel
25/09/2024
274 000 € 10 817 m²
A SAISIR RARE OPPORTUNITE TERRAIN CONSTRUCTIBLE PROCHE DAX. Surface constructible de 2477 m2 sur 1 terrain de 10817 m2 avec 1 Bâtiment existant d'environ 190 m2 avec toiture en bon état .Il y a aussi sur cette parcelle une petite dépendance .. Possibilité de division en lots .Tout proche de DAX , dans un petit village en développement et au calme ce site verdoyant permet l'aménagement de plusieurs types de constructions de maisons ou de logements divers .. Le prix total hors frais d'agence est de 250 000 € .. Nos frais d'agence disponibles sur www64commerce.com sont à la charge de l'acquéreur sont de 24000 € Les informations sur les risques auxquels ce bien est exposé sont disponibles sur le site Géorisques https://www.georisques.gouv.fr €
40180 Saugnac-et-Cambran
64 Commerce
15/08/2025
Professionnel
15/08/2025
500 000 € 7 000 m²
Nous vous proposons à la vente un terrain en zone industrielle. Situé au Sud de l'agglomération toulousaine, à proximité de la D820. La parcelle développe une superficie de 7000 m²Localisé proche de l'A61, le terrain bénéficie d'une très bonne accessibilité et visibilité pour votre projet.. Constructions autorisées: Locaux d'activités, entrepôts, bureaux, équipements sportifs et logements (autorisés sous certaines conditions).Honoraires en sus charge acquéreur + 6% HT du prix de vente. Les informations sur les risques auxquels ce bien est exposé sont disponibles sur le site Géorisques https://www.georisques.gouv.fr €
31190 Auterive
FIKA
03/12/2025
Professionnel
03/12/2025

Vente de terrain en France

Coppten vous propose 180 annonces de terrains actuellement disponibles à la vente en France, correspondant à vos critères et zones de recherche.
Si vous êtes un professionnel de la transaction ou un propriétaire avec une annonce de bien à diffuser, Coppten propose le plus large panel de demandeurs à la recherche d’entreprise ou d’immobilier d’entreprise que tout autre plateforme dédiée. Dans ce cas, cliquez sur «Diffusez» en haut à droit de votre écran.

Pour trouver les annonces d'entreprise ou de fonds de commerce à reprendre, ou d'immobilier commercial (local commercial, bureau, entrepôt, local d'activités, terrain ou espace partagé) diffusées par nos 174 annonceurs professionnels (professionnels de la transaction, franchiseurs et collectivités) et des propriétaires, essayez de filtrer par ville, département, région ou pays. Vous pouvez également filtrer par prix et classer les résultats de votre recherche selon leur date de diffusion ou leur prix.

Prix des terrains à vendre correspondant à vos critères de recherche :

Prix bas Prix moyen Prix haut
Prix métrique (€/m²)

En décembre 2025, le prix de vente d'un bien immobilier professionnel de type terrain, selon les critères de recherche sélectionnés, est compris entre 0 €/m² et 0 €/m², avec une moyenne observée de 0 €/m².

Veuillez noter que cette estimation tient compte des prix affichés sur Coppten avant négociation et avant transaction.


Donnez de la visibilité à votre recherche de terrains à vendre

Coppten est la première plateforme de transaction dédiée à l’entrepreneuriat vous permettant de donner une visibilité unique et gratuite à votre recherche, et d’accéder aux offres les plus confidentielles ne pouvant pas être annoncées en ligne.

Diffuser votre recherche sur coppten


Pour augmenter vos chances de réussite, participez aux événements dédiés aux entrepreneurs

Participez à l'un des 4 événements à venir (salons, réseautages, formations, etc.) pour développer votre réseau et vos compétences.

Trouver un évènement

Questions fréquentes sur les Annonces publiées sur Coppten

Utilisez le moteur de recherche situé en haut de la page pour filtrer les annonces par secteur, localisation, prix ou d'autres critères.
Pour accédez à l'exhaustivité du marché et gagner un temps significatif, vous pouvez diffuser votre Recherche sur Coppten. 

Oui, vous pouvez sauvegarder les annonces qui vous intéressent en cliquant sur l’icône de favoris. Vous les retrouverez ensuite dans votre Espace Membre.

Pour publier une annonce, vous devez devenir membre de Coppten en tant qu'utilisateur pouvant diffuser des annonces. 
Si cela est dèjà fait, vous pouvez créer une annonce directement depuis votre Espace Membre. 

Non, seules les informations que vous décidez de rendre publiques sont visibles. Votre identité complète reste confidentielle jusqu’à ce que vous décidiez de la partager.

Oui, Coppten permet de publier des annonces sans afficher le nom de l’entreprise ni les détails sensibles. Vous pourrez choisir de les communiquer aux demandeurs après un premier contact.